ジブンハウスの平屋には、1LDKから4LDKまで、さまざまなタイプが提供されています。
これらの住宅は、異なる生活スタイルやニーズに合わせて設計されており、選択肢が豊富です。
本日はその中でもFシリーズの紹介致します。
ジブンハウスのFシリーズとは
全てが平屋タイプのプランです。
居住空間をワンフロアに集約した理想の住まいがテーマです。
Fシリーズ以外にも平屋のプランはございますがそちらは別記事でご紹介しております。
新プランの平屋COURTの記事→【https://lifetas.jp/wp-admin/post.php?post=737&action=edit】
是非こちらもご参照ください。
1208F
1LDK+和室の平屋プランである1208は、ミニマルなデザインを基調とした造りです。
ジブンハウスの家の特徴であるゆったりしたシューズクローク付の玄関を通り抜け、建物の中心にリビング・ダイニングを構えます。
窓の開口が大きく、空間をよりオープンな印象。ホテルの一室のようなコンパクトでも機能的で、暮らしの幅が広がるプランです。



1LDK+和室(20.72坪)
建物価格:1,573万円(税込)
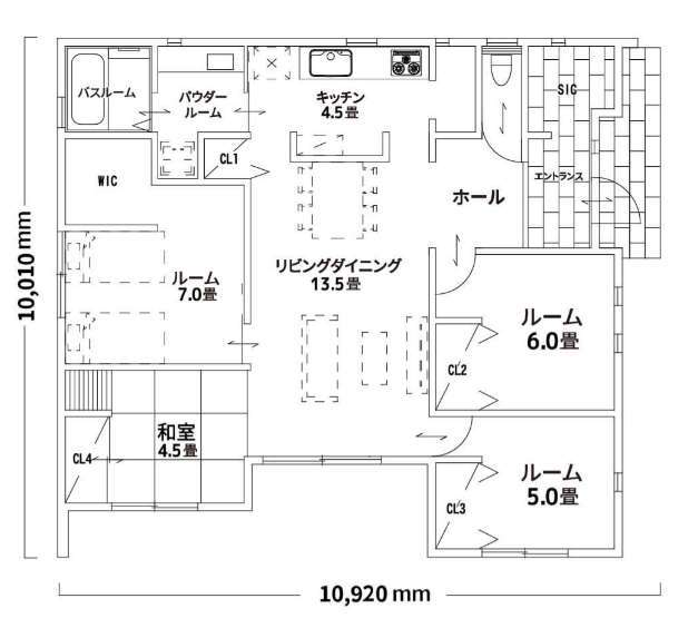
1210F
平屋の3LDKプランである1210は、リビングの両サイドにお部屋がありゆったりとした造りです。
各お部屋にクローゼットを備えていますので、ファミリーさんにもおすすめのプランです。


3LDK(25.67坪)
建物価格:1,826万円(税込)
1211F
4LDKプランである1211は広々18帖のLDKを中心にリビングで必ず家族が顔を合わせるような部屋構成となっていて、自然とフラットな会話が生まれます。
7帖の洋室にはウォークインクローゼットもありますのでお子様が小さいご家族でも収納に困りません。



4LDK(29.68坪)
建物価格:1925万円(税込)
株式会社ライフタス(ジブンハウストリアス久山店)へご相談の方は下記よりお問い合わせください。

