ガレージ付き住宅
⾞も家も、そのときどきのライフスタイルに合わせて使い方を変えていきます。
ガレージのスペースがあることで、創造的な暮らしが生まれます。
人生の中で、変わっていくことも、ずっと変わらない価値も。
その時のジブンが⼤切にしたいことを形にできる空間です。

HACO HACOの魅力

HACOHACOは車を大切にされている方にお勧めのプランです。
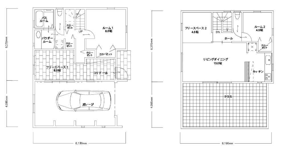
ガレージの横にお部屋があるので、大好きな車を見ながら1杯なんていう生活も出来ます。

子育てに奔走する20~30代と、趣味の時間が増える40~50代では、必要な物も空間も変わります。雨の日でも濡れずに車から荷物を運びこんだり、買ってきた食料をすぐにしまえるストレージとして。または、休日のDIYや愛車のメンテナンスをできる空間にも。
子育てをしてると、月曜日の朝は布団にリュックに、、、持っていくものがたくさんですよね。
そんな日に雨だど心が折れますが、HACOHACOならガレージ付きなので雨の日でも濡れることなく荷物を積み込めます‼
HACOHACO 坪数、金額
1階床面積 79.49m²
(1階住戸49.68㎡+車庫29.81㎡)
2階床面積 52.17m²
延べ床面積 131.66m²(39.82坪)
JSF工法(Jibunhouse Solid Frame/在来木造高耐震パネル)
本体価格 19,910,000円(税込)
内装

玄関横にガレージ

玄関も広々、トールタイプのシューズボックスも完備しております。

オシャレな洗面所で朝の身支度もはかどります。

隣に和室もあるので小さなお子様がいるご家庭でも広々活用できます。

寝室や子供部屋とライフスタイルに合わせて変更可能な洋室。
株式会社ライフタス(ジブンハウストリアス久山店)では土地探しからお手伝いさせていただきます。
間取りなどの変更も可能です!
ガレージをもう少し広くしたり、1階と2階の間取りを入れ替えることも可能です!!
お客様の思いを是非お聞かせください。
お問い合わせは下記よりお待ちしております。

